Terreno en venta en Yucatán Country Club, Privada Cutzam 2

  • $4,675,935
Venta
Terreno en venta en Yucatán Country Club, Privada Cutzam 2
  • $4,675,935

Descripción general

  • Terreno
  • Tipo de propiedad
  • 550.11
  • Lote m²

Descripción

Yucatán Country Club está catalogada como la mejor comunidad para vivir en México. Más de 500 familias viviendo en un extenso entorno natural de 325 hectáreas totalmente planificado y con todas las amenidades y servicios necesarios para no tener que alejarse de casa.

Dentro de sus espectaculares espacios brinda modernas instalaciones deportivas, recreativas y sociales para todas las edades y miembros de la familia creando un ambiente de amistad y camaradería difícil de encontrar en otro lugar de México o del mundo.

Gimnasio
Spa
Alberca y chapoteado
Restaurantes y cafeterías
Bar y Cava
Ludoteca
Juegos infantiles

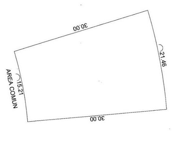
El terreno se encuentra ubicado en la Privada Cutzam 2, pertenece al Yucatán Country Club

CARACTERÍSTICAS:
Superficie: 550.11 metros cuadrados
Fr ente: 15.21 metros
Largo: 30.00 metros
Forma: ligeramente irregular
Colinda con el área común

Nota:
*Las imágenes son meramente ilustrativas y no representan el producto final. Los artículos decorativos o mobiliarios no están incluidos en el producto publicado. Los precios pueden variar de acuerdo a la disponibilidad o las condiciones de compra. Consulta términos y condiciones, aplican restricciones.

Opciones de financiamiento
  • Créditos bancarios

Detalles

Actualizado en abril 21, 2026 a 9:52 am
  • Precio: $4,675,935
  • Área del terreno: 550.11 m²
  • Tipo de propiedad: Terreno
  • Operación: Venta

Detalles adicionales

  • Metros de frente: 15.21
  • Metros de largo: 30

Dirección

  • Ciudad Mérida
  • Estado/Municipio Yucatán
  • Zona Yucatán Country Club
  • País México

Solicitar visita

Su información

Comparar listados

Comparar
Premium Land
  • Premium Land